Nyitólap Hirdetésfeladás Kapcsolat

Ingatlan hirdetések kizárólag ellenőrzött forrásból
Eladó Panellakás, Győr, Nádorváros
#718800669
54.99 millió Ft
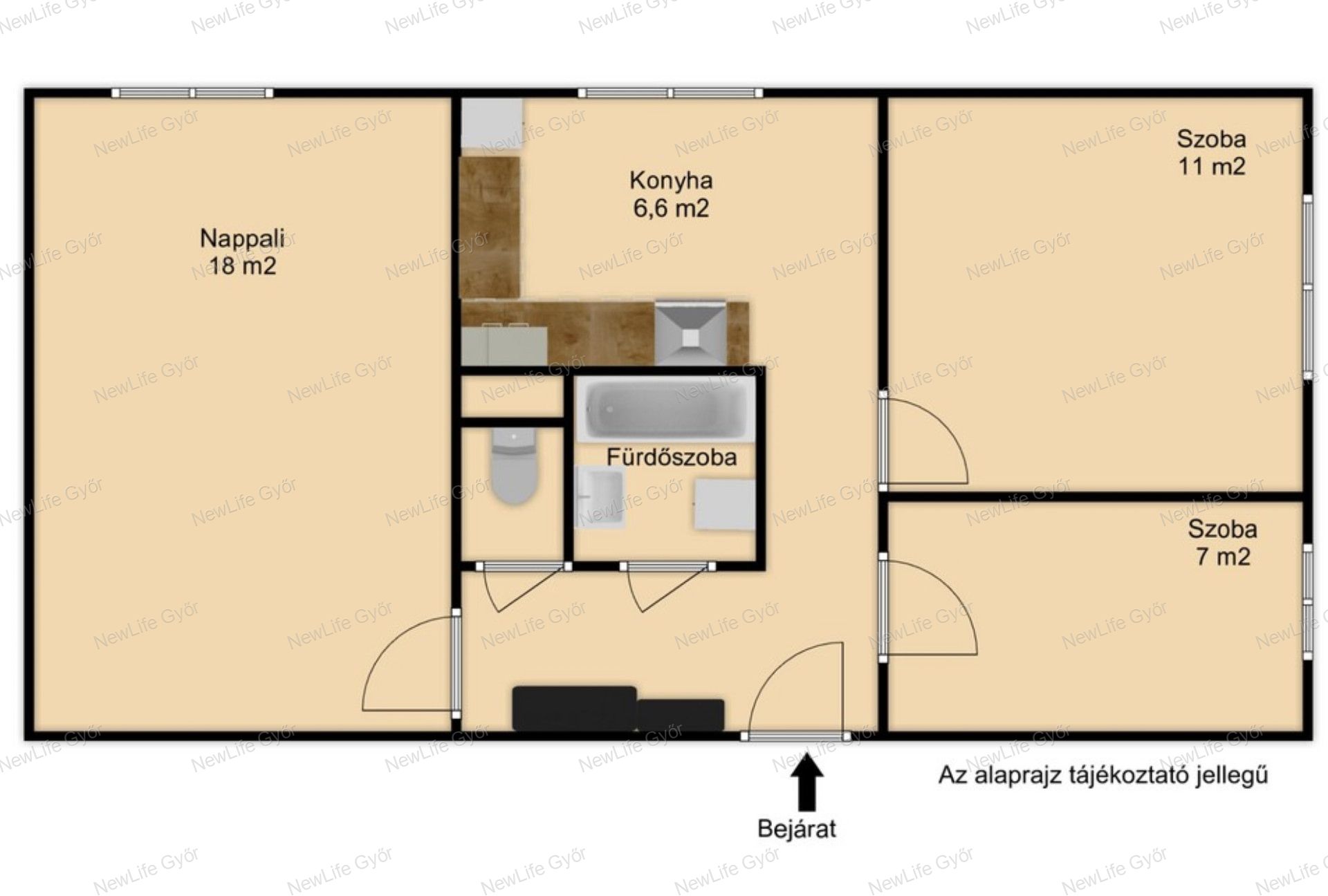
Alapterület 53 m2
Szobák száma 2 szoba + 1 félszoba
Építési mód Panel
Állapot
Emelet nincs megadva

További paraméterek

  • Kilátás: Parkra néző
  • Fűtés: Távfűtés egyedi méréssel
  • Szintek száma: 11
  • Komfort: Összkomfort

Részletes leírás

Győr-Moson-Sopron Vármegye, Győr, Nádorváros, eladó 3 szobás, szigetelt panellakás

Győr-Moson-Sopron vármegye, Győr, Nádorváros, eladó szigetelt panellakás a kórház mellett

 

Győr, Nádorváros, Tihanyi Árpád úton eladó szigetelt, 2+fél szobás panellakás 10 emeletes társasház 3. emeletén.

A közelben séta távolságra a kórház, Pláza, élelmiszer bolt, posta, buszmegállók, általános iskolák, óvodák, játszótér is megtalálható. Autóba sem kell szállni.

Parkolási lehetőség a ház előtt mindig van.

 

A társasház kulturált, több felújítási munkálat már ki van fizetve, ilyen a ház szigetelése, illetve a folyosók, lépcsőfordulók nyílászárói.  

 

A lakás műanyag ablakokkal és fa beltéri ajtókkal rendelkezik. Bejárati ajtaja többponton záródó, acélmerevítéses biztonsági. Fűtése egyedileg szabályozható, távhő, radiátoros hőleadással.

 

10 évvel ezelőtt történt meg a teljes felújítás, mely érintette a villany, víz és szennyvízvezeték cseréjét, az összes burkolatot, fürdőszobában a szanitereket, konyhabútort. Az előszobai nagy szekrény rendkívül jól pakolható.

Jelenleg egy festést követően költözhető, nem igényel felújítást.

 

Elosztását tekintve egy nagy nappali+ 2 szoba, konyha, fürdőkádas fürdőszoba, külön WC és közlekedőből áll. A lakás rendkívül világos, szobái parkra néznek.

 

Az ingatlan tehermentes, azonnal költözhető. Hűtőszekrény elszállításra került.

 

A jelen hirdetésben rögzített, az ingatlannal kapcsolatos adatok, információk az Eladó/Megbízó tájékoztatása alapján kerültek meghatározásra.

 

Irodánkban az alábbiakkal tudjuk segíteni a gyors és megbízható ügyintézést:

-bankfüggetlen hitelügyintézés, CSOK

-energetikai tanúsítvány

-építésztervezés

-értékbecslés

-ügyvédi szerződések, jogi tanácsadás

Kapcsolat

Kömőcziné Mezei Henrietta

Ingatlanvagyon értékelő, közvetítő

Ossza meg a hirdetést:
FacebookGplusTwitter